Будинок 128 кв.м., 5 соток, Білогородка, Бучанський р-н (№ 22-404-336)
Ціна: 82 000 $

Адреса: Полунична, Білогородка, Києво-Святошинський, Київська
Характеристики
| Ціна: | 82 000 $ |
|---|---|
| № об'єкта: | 22-404-336 |
| Тип: | будинок |
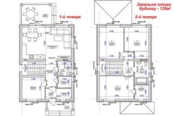
| Поверхів: | 2 |
| Спалень: | 5 |
| Площа будинку: | 128 м2 |
| Ділянка: | 5 сот |
| Ексклюзив: | - |
| Додатково: | котеджне містечко |
Опис
Продам будинок під чистове оздоблення в с. Білогородка, вул. Полунична масив «Сади» (за ЖК Амстердам по вул. Богатирській), 128м2, 5.0 соток,
Під чистову, всі комунікації, новий забудований район з широкими асфальтовими вулицями.
Призначення земельної ділянки «Під будівництво і обслуговування житлового будинку», своя адреса, кадастровий номер, прописка.
Будинок (котедж) розташований в новій респектабельній частині села Білогородка (масив «Сади») в пішохідному доступі до центру села – Сільпо, Фора, ринок, зупинка маршрутки і т. д.
Якщо обираєте будинок на довгі роки, звертайте увагу на ЯКІСТЬ будівництва:
1) Фундамент – монолітний армований стрічковий висотою 140см, накритий монолітною плитою і утепленний ззовні пінопластом 5см;
2) Стіни – із фабричного газоблоку марки D-500 товщиною 30см і зовнішнім утепленням 10см;
3) Перекриття між поверхами – залізобетонні плити;
4) Перемички над вікнами і дверними пройомами – залізобетонні;
5) Два армованих бетонних пояси над першим і другим поверхами;
6) Підлога: бетонна плита, утеплювач, водяна тепла підлога (весь перший поверх і ванна 2-го поверху), чистова стяжка;
7) Фасад: утеплювач 10см, штукатурка з сіткою, «короїд» колорований на імпортній основі;
8) Криша – металочерепиця імпортного виробництва;
9) Вікна – металопластикові двокамерні (профіль WDS) з односторонньою ламінацією, імпортна фурнітура;
10) Стіни всередині будинку поштукатурені під «маяки», зроблені всі відкоси;
11) Залиті бетонні армовані сходи;
12) Зроблена електрична розводка по будинку (провід моноліт мідь 3х2,5 розетки, 3х1,5 освітлення;
13) Розведена водяна тепла підлога по всьому першому поверху і ванній другого поверху;
14) Розведені труби опалення під радіатори, труби холодної і гарячої води, труби каналізації;
15) Стеля другого поверху утеплена мінеральною ватою (товщина – 15см);
16) Фасадний паркан зі стовпчиками, бетонна основа по периметру ділянки, хвіртка, відкатні ворота під електропривід, металопрофіль;
Комунікації: електрика 3-х фазне підключення 17кВт (електроопалення), індивідуальна свердловина 40м, септик (два колодязі з переливом).
Фахівець в некрухомості Володимир

























