1-кімнатна, Солом'янська вул., 20 В, Солом'янський (№ 213-231-581)
Ціна: 120 000 $

Адреса: Солом'янська вул., 20 В, Київ, Солом’янський
Характеристики
| Ціна: | 120 000 $ |
|---|---|
| № об'єкта: | 213-231-581 |
| Кімнат: | 1 розд |
| Поверх: | 9 / 26 ліфт |
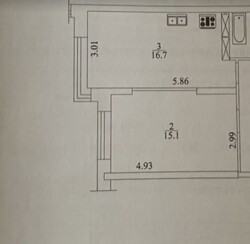
| Площа: | 44 / 15 / 17 м2 |
| Санвузол: | 1 сумісний |
| Балкон: | відсутній |
| Ексклюзив: | - |
| Тип будинку: | побудова від 2014 включно |
Опис
1-кімнатна квартира, Солом'янська вул., 20 В, Солом'янський район. Метраж 44/15/16, поверховість 9/26.
Продається однокімнатна квартира у будинку житлового комплексу бізнес-класу «Солом'янська 20В».
Сучасна квартира зі зручним плануванням і всім необхідним для комфортного проживання: гардеробна кімната, простора кухня з обідньою зоною та зоною відпочинку, спальня з двоспальним ліжком, ванна кімната з душовою кабіною, два телевізори, бойлер, кондиціонер, духова шафа, мікрохвильовка, холодильник, пральна машина.
Приваблива вхідна група будинку, консьєрж сервіс, 4 ліфти, є генератор, що забезпечує аварійне освітлення, роботу ліфту, подачу води і тепла при відключенні світла. Територія закрита, житловий комплекс знаходиться під цілодобовою охороною. Підземний паркінг. Дитячий майданчик. У комплексі є все необхідне: продуктові магазини, поштомат, стоматологія, ресторан. Житловий комплекс має гарне розташування у районі з розвиненою інфраструктурою.


















